Автоматика для открытия-закрытия ворот. Система разблокировки гаражных ворот.
Подъемно поворотные ворота для гаража.
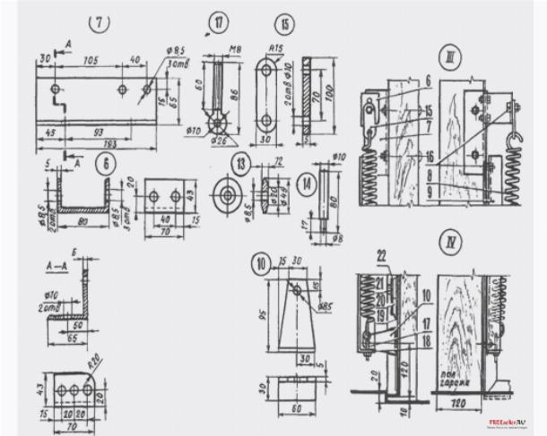
Ворота были сделаны самостоятельно. Каркас из профиль трубы тонкостенной для облегчения веса. Обшиты металло профилем. Самодельные направляющие и ролики.
Полотно представляет собой цельную конструкцию, декорированную самыми различными материалами.
Подъемные ворота своими руками!
В специальных подборках нашего раздела каждый может найти и посмотреть подборку видео о металлических заборах.









Как правильно выбрать и установить качественное забор из из металла можно узнать из видео в данном разделе. Избранные советы от профессионалов
