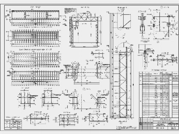
Пример подбора сечения в SCAD.
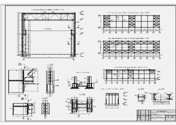
Проектирование стального каркаса одноэтажного.
Промышленного здания.
Кафедра СКиМ.
Расчет в SCAD СПбГПУ.
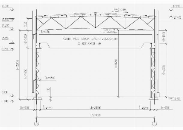
Тема 6 «Расчет большепролетного здания в металлическом каркасе».
Тема 6 «Расчет большепролетного здания в металлическом каркасе».
Если вы хотите увидеть видеосюжеты о конструкциях из металла, необходимо посетить наш видео раздел.









Во время просмотра данных видеосюжетов есть возможность почерпнуть полезную информацию от тех, кто на самом деле является профессионалом в данной области.
