Тема 7 «Расчет здания в монолитном железобетонном каркасе на прогрессирующее обрушение».
Тема 7 «Расчет здания в монолитном железобетонном …».
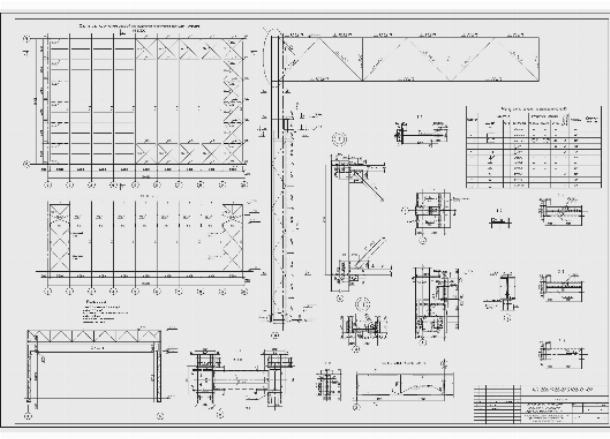
SteelPress: Уралтрубпром и стальные фермы из ХГСП.
SteelPress: Уралтрубпром и стальные фермы из ХГСП.
Если вам интересно посмотреть как делают конструкции из металла, необходимо посетить нашу видео рубрику.









При внимательном просмотре предлагаемых видеороликов существует возможность подобрать для себя качественную информацию от тех, кто считает себя профессионалом в данной области.
