Изделия из профнастила и металла
-
30 Сен 2016
Укладка и подшивка карнизов на крыше дома. Металлическая подшива из нутри. Фото. Показано, как выполняется укладка и подшивка карнизов на крыше дома. Укладка и подшивка карнизов на крыше дома. ... -
30 Сен 2016
Экономичное ограждение спортивной площадки. Заборы. Ограждения. Снегозадержание WA BiS. Аксессуары для кровли. Фото. Экономное ограждения спортивный площадок. Заборы. Ограждения. Экономичное ограждение спортивной площадки. Заборы. ... -
30 Сен 2016
Расчет Швеллера со вставкой из вермикулитовой плиты. Autocad Architecture: балки и колонны. Фото. Для увеличения приведенной толщины металла Швеллера применяется вставка из огнеупорной плиты. Тем самым ... -
30 Сен 2016
Тихо тельфером жужжа кроют крышу не спеша. Как правильно выборать Профнастил. Ошибка в длине. Фото. Если очень хотеть и хорошо подумать — всегда найдется оригинальное решение практически любой задачи… ... -
30 Сен 2016
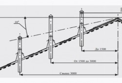
Винтовые сваи. Характеристики и назначение. Центр тяжести фигуры. Фото. Всегда готовы к вашим звонкам. Винтовые сваи. Характеристики и назначение. Разбиение на части, как во многих учебниках ... -
30 Сен 2016
Проход трубы дымохода через кровлю. Вывод стояка через кровлю. Фото. Наш вариант решения проблемы прохода труб дымоходов и вентиляции через кровлю. Проход трубы дымохода через кровлю. Необходимые материалы ... -
30 Сен 2016
Занижение стапеля. Ремонт порога. Споттер. Фото. Теперь любая машина заедет без проблем. Для поисковика. Риховка заз ваз споттер стапель. Мерс форд pfp dfp ford benz daewoo. Кузовной ремонт ... -
30 Сен 2016
Ручной профилегиб. Станок профнастил ручной. Фото. Профилегиб новинка! Высота профиля на выходе 20 мм. Время профилирования одного листа на станке до 2х минут. Станок имеет возможность ... -
30 Сен 2016
Забор из профнастила. Покраска бампера самостоятельно. Фото. Мастер Т.В. =. Забор из профнастила. Я начинающий автомаляр. А так же вы узнаете еще много интересного не касающиеся автопокраски. Самым популярным ... -
30 Сен 2016
Фундаменты для легких заборов. Монолитные участки в перекрытии первого этажа — ДомТвой. Фото. С хорошей несущей способностью. А во второй, уделим внимание более слабым. Рыхлым грунтам и плодородному слою… Так-же есть ...
