Как изготавливаются откатные ворота.
Как изготавливаются откатные ворота.
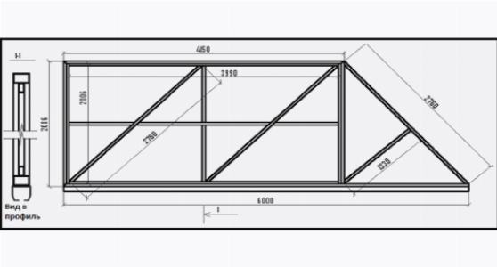
Автоматические откатные ворота из профнастила. Сам профлист «топится» в откатные ворота, и становится заподлицо с квадратной трубой. Снизу створок ворот крепится ведущая рейка, стыки которой обрабатываются герметиком.
Конструкция откатных ворот включает в себя направляющую рельсу, по которой и движется створка за счет специальных роликов.
Автоматические откатные ворота.
В этом разделе мы собрали для вас видео сюжеты, на которых вы сможете увидеть огромное количество дополнительных элементов для заборов.









Актуальное видео о разных элементов для заборов, вы сможете посмотреть в нашей рубрике.
